Na robu ekvadorskega mesta Quito, kjer se urbano tkivo prepleta z razgibano andsko krajino, stoji hiša Viteri Vergara – premišljeno zasnovan dom, ki z jasno konstrukcijsko logiko, občutljivim odzivom na teren in uporabo naravnih materialov vzpostavlja subtilno ravnovesje med arhitekturo in okoljem.
Hiša v Nayónu, slikovitem primestnem območju le petnajst minut severno od središča Quita, se umešča v pokrajino, ki jo zaznamujeta razgibana topografija in toplo, suho podnebje.


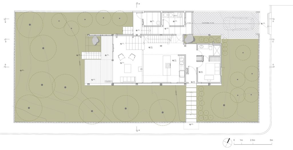
Ozkemu, pravokotnemu vogalnemu zemljišču z izrazitim vzponom dajejo poseben značaj obilje sonca, ki pada na daljši stranici, odprti pogledi proti mogočni gorski verigi ter skrbno ohranjena, čeprav redka vegetacija. Prav ti dejavniki – skupaj z lokalnimi gradbenimi omejitvami – so odločilno usmerjali zasnovo objekta in njegovo konstrukcijsko logiko.
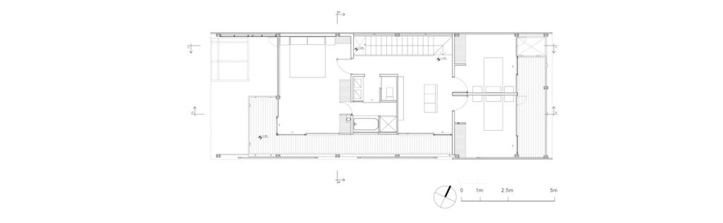
Arhitekturna zasnova sledi vzdolžni osi parcele in se razvija v dvonadstropni pravokotni tloris. Konstrukcijski sistem je natančno prilagojen terenu: dve vzdolžni nosilni osi v smeri sever–jug z razponom 6,6 metra vzpostavljata jasno in racionalno prostorsko organizacijo.


Stik s strmim terenom je rešen s terasasto armiranobetonsko platformo, ki nosi samonosno betonsko strukturo – nekakšno kompaktno »škatlo«. Ta združuje prostore kot so kuhinja, tehnični prostori in delovna soba, hkrati pa deluje kot zaščitni ovoj, ki zagotavlja zasebnost intimnejšim delom doma. Na spodnjem nivoju, kjer se teren odpira proti razgibanem gorskemu kanjonu, so umeščeni bivalni prostori, zasnovani z občutkom za odprtost, svetlobo in pogled.

Nad betonskim volumnom lebdi zgornje nadstropje, v celoti izvedeno iz lesa in namenjeno zasebnim prostorom. Leseni ovoj ne deluje zgolj kot zaščita pred vremenskimi vplivi in močnim soncem, temveč subtilno uokvirja poglede ter poglablja odnos med notranjostjo in okoliško krajino.

Kombinacija materialov in konstrukcijskih principov omogoča učinkovito obvladovanje potresnih obremenitev ter optimalen prenos sil v tla. Pomembno vlogo pri ekonomičnosti projekta ima tudi prefabrikacija, ki je občutno zmanjšala stroške gradnje. Z uporabo materialov v njihovi naravni, neobdelani podobi – brez dodatnih premazov, celo na strehi – arhitektura dosega visoko stopnjo prostorske kakovosti, trajnostne ustreznosti in racionalnosti.

Arhitektura: MCM+A taller de arquitectura (Ekvador)
Projekt: Casa Viteri Vergara
Lokacija: Quito (Ekvador)
Bivalna površina: 240 m2
Površina parcele: 500,4 m2
Leto izvedbe: 2018
Foto: BICUBIK


Sledite nam